
3CL HOUSE
Nhà mặt bằng 3 chữ C
Specifications | Khái quát
---
Program
house
Design Year
2024
Status
conceptual
Site Area
10m x 24m (240m2)
Design Firm
MODS
- Architect
N Quang Dau
-------------------------------------------------
-----
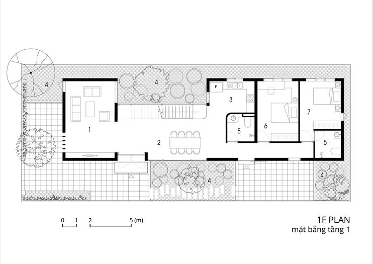
3CL House means 3 C letter House. The floor plan of this house is originally C-shaped, however, each floor up, the C is taken symmetrically to the floor below. Thanks to that, there are extra spaces at the foot and head of the C letter to make a green balcony. The concave parts of the C letters on both sides are also blank spaces for gardening. At this area, large glass walls are placed to provide a clear view, so the dining room and living room can fully enjoy gardens right outside.
---
.png)






MASTERPLAN
mặt bằng tổng thể



drawings of floor plans
1. Living room
2. Dining
3. Kitchen
4. Garden
5. Water closet
6. Bedroom 1
7. Bedroom 2
8. Library
9. Void
10. Sofa area
11. Bedroom 3 (master)
12. Balcony
13. Sofa area
14. Bedroom 4
15. Laundry
16. Terrace for clotheslines
17. Water tank area

















