
NAMAN BEACH BAR
Quán Bar Bờ Biển Naman Resort
Specifications | Khái quát
---
Vị trí
Naman Retreat Resort, đường Trường Sa, Đà Nẵng, Việt Nam
Loại hình
bar
Năm thiết kế
2013
Tình trạng
hoàn thiện thi công 2015
Diện tích tổng thể
thuộc về tổng thể của khu nghỉ dưỡng
Diện tích sàn
143 m2
Thiết kế Kiến trúc
Vo Trong Nghia Architects
- Tham gia chính
Trong Nghia Vo (architect in charge), Quang Dau (team leader - project architect), Q Bao Hoang (team member architect)
- Thành viên khác
-
Kiến trúc sư: Hai Vu, Thuy Duong Ngo & các Sinh viên - Thực tập sinh
Thông tin thêm về Chức danh
-
Architect in Charge: KTS Chủ trì
-
Team Leader - Project Architect: Trưởng Nhóm - KTS Phụ Trách Dự Án
-
Team Member Architect: KTS Thành Viên Nhóm
-
Đậu Nhật Quang - MODS, là KTS phụ trách đồ án này khi còn làm việc cho Vo Trong Nghia Architects
Thiết kế Nội thất
Đối tác của khách hàng
Tư vấn Kết cấu (phần bê tông)
Viet Structure
- Kỹ Sư
Van Canh Tran (đại diện nhóm)
Tư vấn Cơ Điện - CT Nước (MEP)
Đối tác của khách hàng
Nhà thầu tre
Vo Trong Nghia Architects
- Quản lý thi công tre
Ba Tuong Nguyen
Nhà đầu tư
Thanh Do Investment Dev & Constr Jsc
Nhiếp ảnh (ảnh hoàn thiện)
* một số ảnh từ các nguồn khác đã có ghi chú bên dưới
-----

---------
Overall Description
THUYẾT MINH TỔNG QUAN
-----
(Đối với các dự án đã hoàn thành, phần thuyết minh gồm hai phần Tổng quan và Chi tiết. Trước hết là phần thuyết minh tổng quan từ Vo Trong Nghia Architects)
------
Sơ Lược Về Tổng Thể
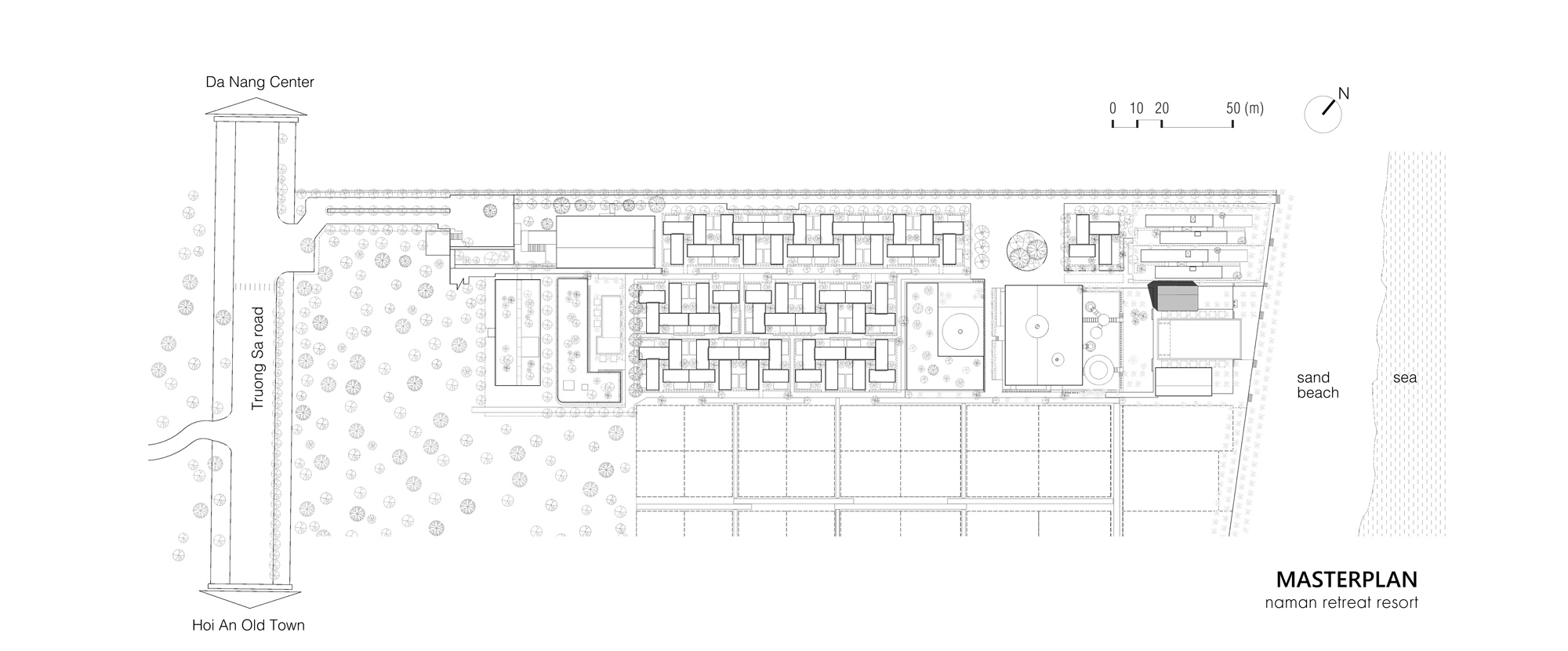
Nằm bên cạnh tuyến đường chính nối thành phố Đà Nẵng và phố cổ Hội An, Naman Retreat Resort là khu nghỉ dưỡng ven biển tiêu chuẩn cách sân bay quốc tế Đà Nẵng 16 km. Naman Retreat được thiết kế như một quần thể nghỉ dưỡng xanh nhiệt đới, hiện đại nhưng yên bình. (có thể xem bài trình bày về Naman Retreat Resort ở tại địa chỉ này) Trên diện tích 3,4ha, nhiệm vụ thiết kế là kết hợp hài hòa 80 bungalow, 1 khách sạn, 2 biệt thự mặt tiền biển, 1 nhà hàng, 1 spa, cùng với bể bơi tràn và một số dịch vụ bãi biển như quán bar bãi biển và câu lạc bộ bãi biển. Hai con đường bắt đầu từ sảnh vào của resort tiếp cận gần bờ biển. Ý tưởng chung của thiết kế khu nghỉ dưỡng này là cung cấp dịch vụ chăm sóc thể chất và tinh thần cho những du khách lưu trú dài ngày bằng môi trường thân thiện với thiên nhiên và các hoạt động lành mạnh như spa, yoga, thể thao bãi biển, v.v. Để đạt được một bầu không khí tuyệt vời giúp du khách có thể thanh lọc, thư giãn tối đa cơ thể và tâm trí, khu nghỉ dưỡng được thiết kế bằng sự kết hợp hài hòa giữa cây xanh, đá tự nhiên và tre.
-----
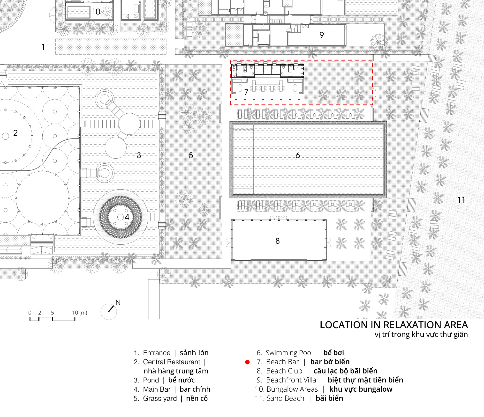
Bar Bãi Biển
Đối diện với bể bơi tràn và nằm ngay cạnh bãi cát là quầy bar bãi biển. Không gian mở có mái che này được thiết kế như một điểm nghỉ ngơi thư giãn, nơi mà du khách có thể giải khát ngay trước hồ bơi với tầm nhìn thẳng ra bãi biển. Công trình mái dốc này có cấu trúc rất đơn giản, không làm cản trở tầm nhìn từ nhà hàng trung tâm nhưng vẫn tạo được khả năng thu hút nhất định đối với thực khách đến dùng đồ uống sau các bữa ăn.
Phần bao che của quán được thiết kế bằng tre và đá. Khối dán đá là các kho chứa và các tiện ích phụ trợ. Cấu trúc chính của mái dốc được tạo bởi 8 khung tre. Mỗi khung bao gồm những cây tre cong và thẳng được kết nối với nhau bằng chốt tre và dây buộc. Dãy các khung này vuông góc với bãi biển, do vậy mà cho phép gió mát từ biển thông suốt qua toàn bộ quán.
Các khung tre được sử dụng cho công trình đều được xử lý tự nhiên tại chỗ. Quá trình này bao gồm uốn bằng lửa, ngâm trong nước và khử trùng. Quá trình này mất 4 tháng để đạt được chất lượng tre tốt hơn. Sau quá trình này, các khung được đúc sẵn trên mặt đất giúp tăng độ chính xác của từng khung và giảm thời gian thi công. Phương pháp xây dựng này đã được chứng minh là rất hiệu quả và việc kiểm soát chất lượng trong quá trình xây dựng dễ dàng hơn nhiều. Vật liệu lợp mái là mái lá tự nhiên (cây vọt). Chất liệu này tạo nên hình ảnh rất nhiệt đới cùng với cảnh quan xanh xung quanh tòa nhà làm tăng thêm bầu không khí thư thái cho khu nghỉ dưỡng.
-----


ghi chú riêng cho ảnh này: ảnh tham khảo từ internet
xem các bản vẽ khác



ghi chú riêng cho ảnh này: ảnh tham khảo tải từ flickr.com - Louis Allen
----
----
Additonal Descriptions
PHẦN TRÌNH BÀY BỔ SUNG
(Phần viết bổ sung từ Đậu Nhật Quang, KTS phụ trách đồ án này khi còn làm việc cho Vo Trong Nghia Architects, nay là người thành lập MODS)
Trên bản đồ tổng mặt bằng, công trình được bố trí ở vị trí có thể ảnh hưởng tới xung quanh. Khi dự án vừa mới phác thảo, Bar Bờ Biển được cho rằng bên cạnh việc kết hợp với Câu Lạc Bộ Bãi Biển (beach club) và Bể Bơi Trung Tâm (central swimming pool) để phục vụ khách tham gia trong khu giải trí quanh hồ bơi, bản thân Bar Bờ Biển phải có khả năng gây được sự chú ý của du khách đến từ bãi biển cũng như người từ các bungalow, khách sạn, nhà hàng trên đường ra bãi biển. Nó được mong đợi là một điểm dừng tốt. Lúc đầu, phác thảo 1 được đề xuất có cấu trúc gần như bằng tre toàn bộ với chỉ một bức tường đá làm mặt tiền phía sau giúp giữ cho phần tre khỏi gió mạnh. Tuy nhiên, sau đó khách hàng đã yêu cầu kiến trúc sư bổ sung thêm diện tích làm kho, wc và phòng kỹ thuật. Do vậy phác thảo 2 đã được đề xuất thay thế, với một khối bổ sung xây bằng khung bê tông và tường gạch với đá ốp hoàn thiện, nhằm đáp ứng các chức năng đó. Đề xuất này đã được lựa chọn và phát triển, trở thành công trình thực sự của khu nghỉ dưỡng hiện nay.
Về chức năng kết cấu của khối mới, sàn áp mái bê tông của nó cung cấp các bệ đỡ cho các điểm gác bên trái của khung tre. Mỗi điểm trong số này không phải là các giá đỡ thông thường để đặt cấu kiện lên; nó đi kèm với một chi tiết bằng kim loại có tác dụng như một móc ngược để giữ chặt phần dưới khung tre tại vị trí của chúng trên sàn bê tông. Tất nhiên chi tiết này cũng được lắp đặt ở chân cột bên phải mỗi khung. Một số dây cáp còn được bổ sung thêm nối từ sàn áp mái với phần trên của khung tre, nhằm tăng khả năng níu giữ cho toàn bộ hệ thống.
-----
-----
sự thay đổi của hai phương án

ghi chú riêng cho ảnh này: ảnh tham khảo từ internet

































